architecte inscrite à l’ordre
+33(0)6 67 08 56 72
celine.commaille@gmail.com

maison D.

Construction d'une maison individuelle

2021-2023
Saint-Jorioz (74)
maître d’ouvrage privé
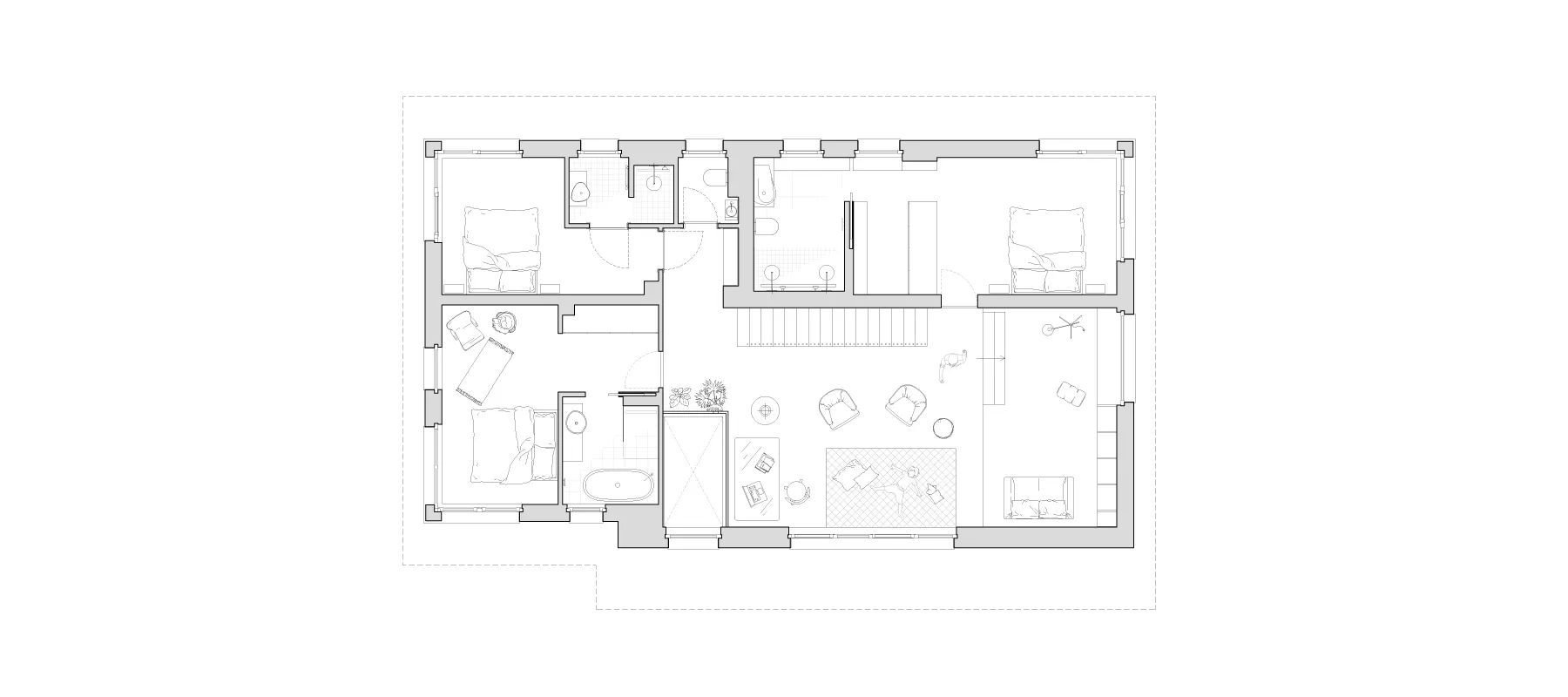
190 m2
mission complète
projet terminé

Photographie cédric stoecklin | VIDEO PERIPLES FILMS

Le projet s’implante sur la parcelle d’une maison de plain-pied existante. Initialement envisagés comme une extension et une surélévation, les travaux ont finalement abouti à la construction d’une maison neuve, suite aux études de faisabilité structurelle.

La nouvelle maison rend hommage à l’ancienne par ses volumes et son ancrage dans le paysage. Son écriture contemporaine dialogue avec une esthétique rurale, inspirée des longères. L’enduit matricé évoque les bardages bois traditionnels.

Les intérieurs, aux murs, plafonds et sols clairs, maximisent la lumière naturelle et valorisent la présence du végétal. Sobriété, élégance et chaleur définissent l’ensemble.

architecte inscrite à l’ordre
+33(0)6 67 08 56 72
celine.commaille@gmail.com